今年
东南大学
华中科技大学
威尼斯建筑大学
重庆大学
联手在恩施做了一件事
▼
2019年4月28日,在恩施州与宣恩县的支持下,受东南大学教育基金会与雅伦格文化艺术基金会资助,“两河口:土家盐道古村的再生”研究生国际四校联合研学营在宣恩县沙道沟镇彭家寨正式开营。四所高校组成近50人的国际师生团队,以自己的专业所学贡献当地,探讨衰败凋敝的盐道古村如何在即将到来的旅游业发展中获得再生契机,同时避免即时性和浅表性的消费对当地仍具生命力的文化遗产可能产生的磨蚀。

近日,设计成果集中公布
工作营的阶段性成果在意大利雅伦格文化艺术基金会威尼斯禅宫展厅举办了展览,内容包含了两河口的前期调研测绘、主题研究成果以及各校提出的七个精彩设计方案。

我们熟悉的彭家寨
两河口村的古盐道
在他们手中变成什么样子?
效果图马上放送
▼
1
木构拓朴:
从日常生活到节日庆典
(东南大学)
中国南方传统的干欄木构建筑,承重体系与围护体系分离,空间和结构呈现出灵活性、可变性和适应性。与中国各地乡土聚落一样,土家族村寨的街道是集体生活的重要场所。干欄木构的可变性与灵活性,使得公共空间展现出迷人的适应性,其形态随着人们的生活方式而改变。现场调研观察到土家族生活的三种典型状态:日常、赶集与庆典。它们需要的公共空间是不同的。该设计研究了两河口村作为一个整体建构体系,其固定与可变的不同组成构成,利用其可拆装的构造方式,以一个结构体系的拓朴变形,适应与承载日常生活、乡村集市和节日庆典的不同空间需求。

不同模式下老街平面布局

日常生活模式

集市场景模式

节日庆典模式
2
土家民艺村:
两河口村公共空间重塑与
典型民居改造
(东南大学)
设计从两河口村与其所在山谷中九寨的区位关系出发,期望打造一个与周边其他村寨功能互补又独具特色的空间节点以吸引来访者。将挖掘、展示、传承、培训土家族丰富多彩的民族手工艺作为新的功能定位,在唤醒濒临失传的民艺,增强地区文化自信的同时,发展新的展陈、民宿、餐饮接待等服务性产业以激活衰败的古村,引导外出村民重新回乡就业。

土家凉亭模型

土家凉亭效果图

土家民艺葆育中心总平面图

西兰卡普艺术家工坊

兰卡普工坊平面图

西兰卡普织锦展示室外平台
3
土家族泛文化民宿村
(东南大学)
在两河口土家泛博物馆旅游开发的背景下,基于老街自身的区位,赋予其文化主题民宿村的功能,既是对当地旅游服务设施的完善,也给沉睡的村庄重新注入活力。恩施州土家族文化资源丰富,老街所在的盐道曾是土家文化的传播路线。以老街保存完好的空间形态作为物质载体,对当地丰富的土家文化进行转译再现。设计选取了多种代表性的土家特色文化,提取元素进行转化和空间表达而非简单的符号呈现。老街北部入口处两栋建筑作为公共设施,作为日间活动的茶吧和晚间活动的土家酒馆;其余建筑均为承载一种特定土家文化的主题民宿。选取其中4栋建筑进行单体设计,分别是竹编主题民宿、农耕文化主题民宿、傩戏主题民宿,以及有面向街道和室内两个高低不同舞台的土家音乐酒吧。

土家竹编主题民宿

傩戏主题民宿


土家民风主题民宿

土家族音乐主题餐吧设计
4
两河集事
(华中科技大学)
以“两河集事”为主题,一方面表示设计赋予两河口村新的集市功能,另一方面体现了希望更多故事在此发生的愿景。两河口村面临的问题体现为“拆”与“留”的矛盾,我们选择保留老街转变功能来面对这一问题,“集事”成为解决问题的突破口。通过对聚落、街道、建筑以及行为模式四个方面进行分析评估,提取了老街的七个原型,进行拆分与重组,植入全新功能为居民与游客提供服务。利用两河口老街,我们尝试着创造一个匀质空间,一个可以提供各种事件发生的场所,在这里可能会上演居民与游客的故事、现代与传统的故事以及民族融合的故事……

老街的建筑要素提取

两河集市畅想


两河集市畅想
5
“言(盐)·趣”——
两河口盐道古街复兴
(华中科技大学、湖北美术学院)
设计立足于保护、活化古村落,创造自身造血能力为前提,结合提升当地居民自身文化认同与延续土家文化而融入土家木工、竹编、西兰卡普等丰富的特色民艺,将村落定位为有文化保护、孕育功能的生态博物馆,并融入整个彭家寨“泛博物馆”体系之内来达到活化古街的效果。
转译“盐”颗粒状的特性,以临街的汇聚各种活动的家庭火塘为核心元素,拆除其外墙,直接将其与古街空间相连,并置入公共的社会活动。此外,为强调土家聚落“山房田水”空间格局,清除了场地内影响建筑风貌的新建和加建部分,新置入一个社区图书馆,增强文化属性,同时开辟后山和临水游览路径,中间加以联通,形成网状空间布局。
通过这些活化策略,人们在盐道古街生态博物馆安居乐业,大量的交流言语与丰富有趣的场地空间交相辉映,实现了盐道古街的复兴,故名曰“言·趣”。


老街改造后场景畅想

介入老街的改造策略
6
两河口:
盐道古村再生(中期阶段)
(威尼斯建筑大学)
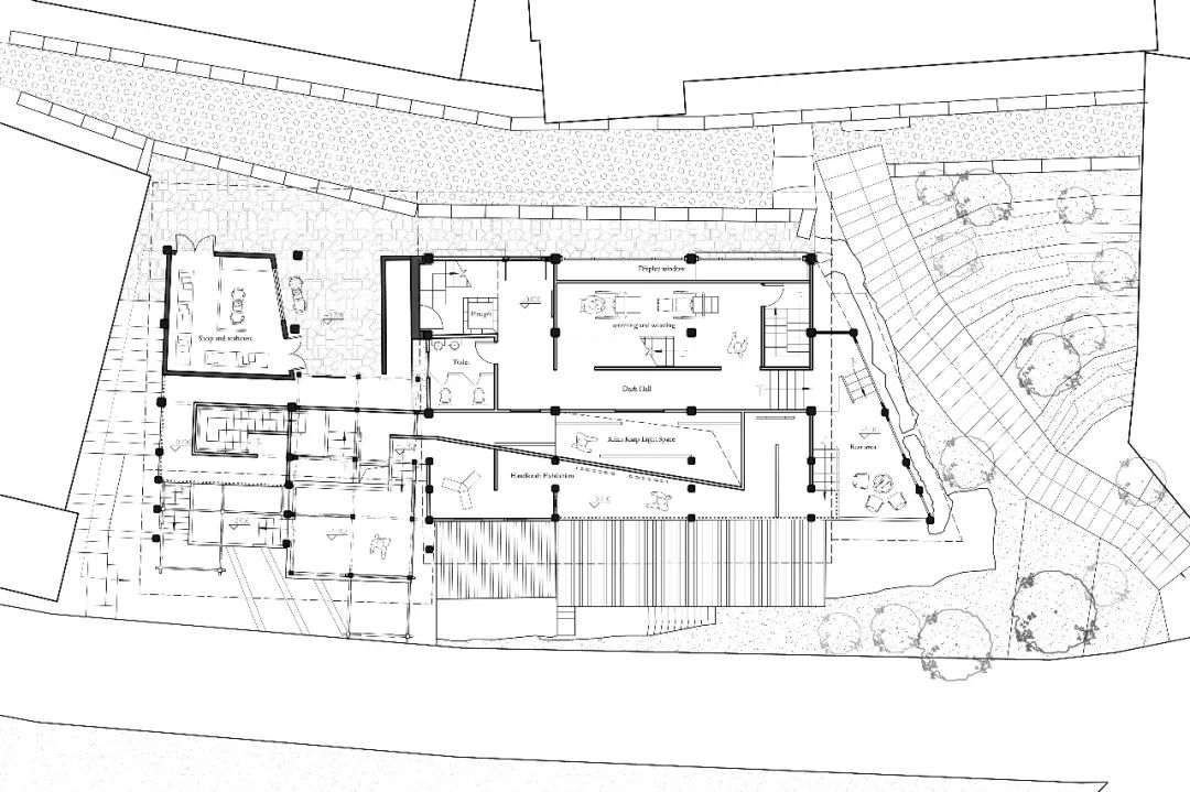
在较大尺度的整体规划层面,设计使两河口成为连接山谷中不同村庄的枢纽,成为盐路沿线旅游线路中通往不同特色村寨的起点。这些村庄将由一条公交线路和自行车/步行线路连接起来。在入口处设置换乘停车,有助于控制区域的交通流量。两河口村将有一个通向老街新入口,一座桥以及不同类型的台阶和坡道将村庄与河流两岸连接起来。
老街中所有新建和损毁的部分将被移除,沿马路的底层,将包含一个新的服务中心。底层和连接通道将采用当地材料和工艺,如砖石和木材。历史建筑和新建筑的功能是彼此混合的,以提供带富有当地文化特色的酒店、住宿、商业和娱乐等多种服务。

两河口与九寨的地理特征

两河口村整体规划

设计方案模型

场地方案剖面图
7
“乡村生命体”——
历史| 健康 | 和谐
(重庆大学)
针对村庄现存问题,通过对村民5分钟、10分钟、15分钟活动圈的分析,我们将老街的一期建设定位为村民活动中心。在规划、建筑、景观三方面分别提出“空间处方”,意图用老街这个“乡村生命体”“医治”两河口村的“伤病”。在规划上,一方面运用空间句法对场地交通进行重新梳理,另一方面置入茶馆、文具店、体检中心、民宿、图书馆、体验馆等多种功能。在景观上,选取两轴(新街、后山)三节点(南入口、北入口、后山)进行景观优化。在建筑上,对12栋房子建立档案卡,评估出3栋最具改造潜力的建筑进行改造。

老街改造后场景畅想

乡村生命体展览建筑轴测图

乡村生命体居住建筑空间与构造
看完
有点脑洞大开有没有?
彭家寨
是恩施第一个正接受“活化”的古村寨

彭家寨。宋文 摄
2018年11月22日,“中国土家泛博物馆(彭家寨)的过去、现在与未来‘活化’展览”在武汉bighouse当代艺术中心开幕。这也是“中国土家泛博物馆(彭家寨)的过去、现在与未来‘活化’展览”5月27日参加威尼斯双年展后回国开启的国内巡展第一站。
回顾:今天,宣恩彭家寨搬到了武汉!

目前,彭家寨正在按照相关规划
闭关变身
未来的彭家寨将按照“一廊三心四区九寨”的布局,成为一个控制范围达到45.28平方公里、重点规划范围6.06 平方公里的“大彭家寨”:一廊即土家文化风情廊;三心即两河口主游客中心、伍家寨次游客中心演艺中心;四区即文化体验区、体育休闲区、民宿康养区和生态保育区;九寨即狮毛寨、汪家寨、彭家寨、曾家寨、梁家寨、伍家寨、张家寨、白果寨、唐家寨,并提炼土家文化中的“土楼、土绣、土俗、土匠、土菜、土药、土耕、土乐、土史”整体形成“武陵九寨”品牌。

不论变成什么样
期待着彭家寨的
民俗、建筑、旅游经济都
真正地“活”起来,人气旺起来
让古老的寨子焕发新生
专家表示,通过办彭家寨博物馆项目,可以更好地保存其形态,并能够将其蕴含的文化艺术价值得到最大限度传承,留住人们对土家文化的那份信仰,将力促作品在2020年第十七届威尼斯建筑双年展上再次向全世界展示。
民族的,就是世界的
相信,世界的目光会再次聚焦恩施
不止是彭家寨
来源:东南大学建筑学院/综合
编辑|梅珂
审核|邹瑜
免责声明
本文为“荆楚号”作者上传并发布,仅代表作者观点。荆楚网提供信息发布平台。